VILLAS JUMELLES

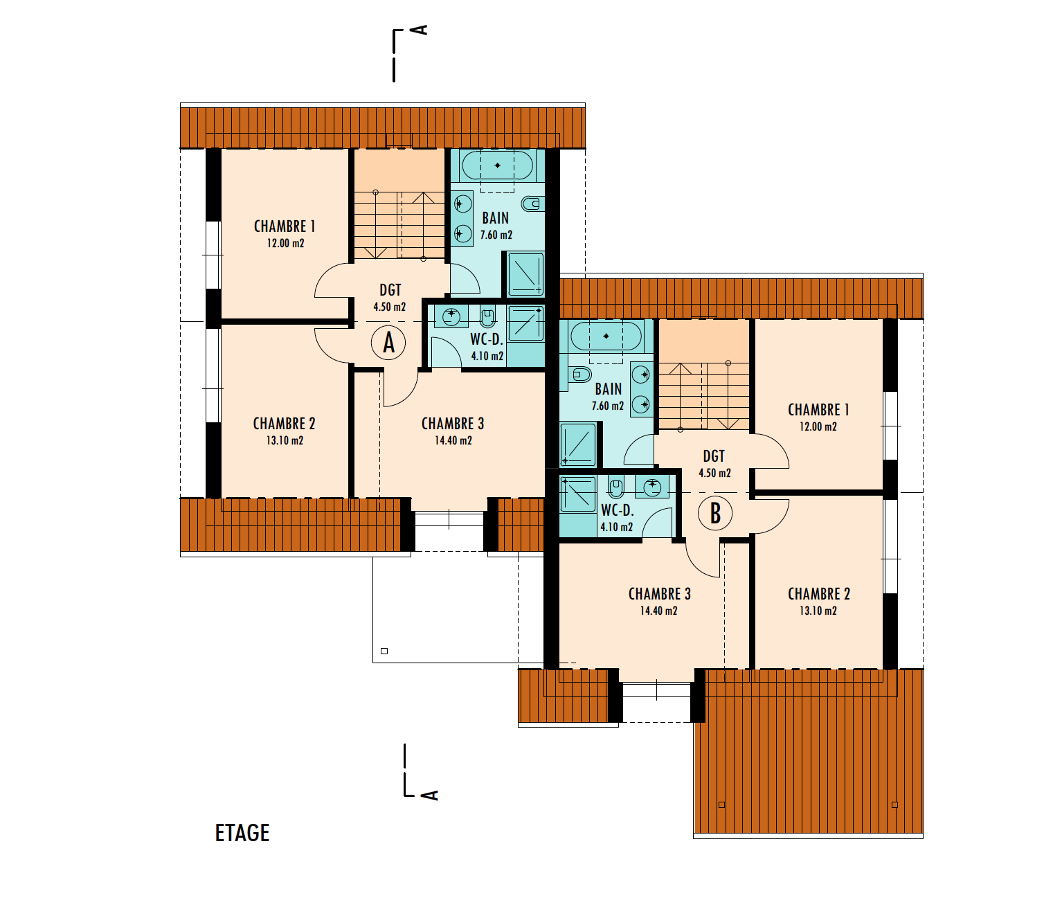
Villas sur 3 niveaux. Grande cuisine ouverte, séjour/salle à manger, 3 belles chambres, salle de bain avec WC, douche et baignoire – sous-sol avec cave et buanderie – chauffage par PAC - Plans et photos présentés à titre d’exemple, ces projets sont personnalisables au gré des envies et besoins du client -

 

- Matériaux de construction -

Plancher sur sous-sol

Dalle en béton armé / Isolation en polyuréthane ép. 9 cm / Chape

Murs façades 

Brique de terre cuite ép. 15 cm / Isolation périphérique en polystyrène ép. 20 cm / Crépi extérieur armé de treillis + enduit de finition ribé.

Toiture

Charpente en sapin traité / Isolation en laine de verre ép. 18 cm posée entre chevrons / Sous-couverture type « Isoroof natur-KN » ép. 6 cm / Couverture en tuile de terre cuite.

Isolation thermique

Conforme à la norme SIA 380/1 (éd. 2009).

Murs intérieurs

Brique de terre cuite

Chauffage

PAC (sonde géothermique ou air/eau) / Emission de chaleur par le sol